Godrej Crest Villas

Location: Sector 27, Greater Noida


Full Address

Sector 27, Greater Noida

Help & Support

Call Us Now

+91-7289000808

Godrej Golf Links Crest Villas Greater Noida


A well-planned project, Godrej Crest Villas Noida Extension, is strategically located near Pari Chowk and is designed and developed by the Godrej group. Residential villas are situated in this beautiful and luxurious estate, surrounded by lush green surroundings. Featuring a nine-hole golf course, this area has more international standards due to its strategically designed nature. At Godrej Crest Villas, you'll also find endless amenities, including a kid's play area, swimming pool, gym, landscaped garden, and open space.

A great emphasis is also placed on the natural beauty and ambiance of Godrej Crest Villas Greater Noida West. This township has the best infrastructure in Noida Extension and Greater Noida West. Godrej Crest Villas Noida Extension has a great location with many accesses such as hospitals, schools, institutes, shopping malls, local shopping markets, social hubs, adventurous parks, restaurants, and many more facilities near Godrej Crest Villas.


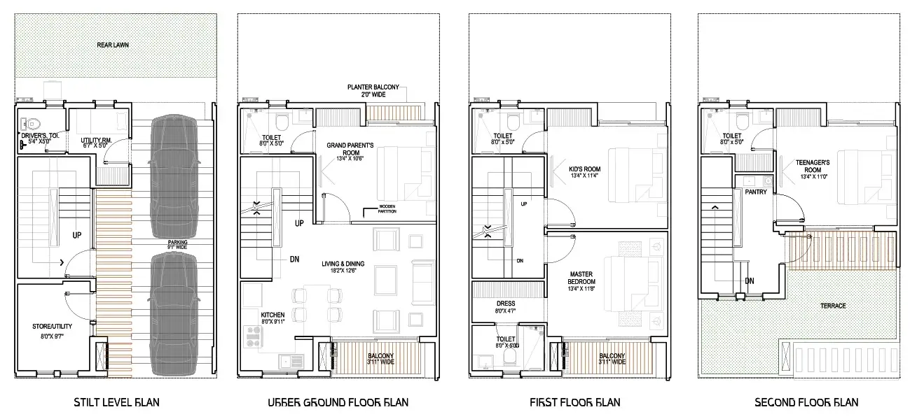
Godrej Crest Villas Configuration


Godrej Crest Villas Noida Extension is a beautiful and large project spread up to 100 acres of land. It has many facilities which hardly any other societies have. It is a 100 acres township which is located in the most developed area of Greater Noida West. Godrej Crest Villas Noida Extension has residential units which come in the segment of 4bhk. The size of these units varies from 233 sq. mtr. to 494sq. Meters. Godrej Crest Villas Noida Extension has its 80% developed area and a great panoramic view. The residential villas start with a price that varies from 1.40 cr. To 3.30 cr. This is a very reasonable price if we look towards the amenities provided by the great location of Godrej Crest Villas.


Godrej Crest Villas Amenities


The project offers amazing amenities to the people like:

✯ Clubhouse
✯ Meditation center
✯ Sports facilities
✯ Kids play area
✯ Swimming pool
✯ Gym
✯ Power backup
✯ Open space
✯ Landscaped garden park
✯ Car parking
✯ Daycare center
✯ Beautiful Golf club
✯ 9 hole Golf course

Godrej Crest Villas Specifications


Doors:

✯ Well fitted with Godrej locks
✯ The main door is fitted with an automatic lock
✯ Doors are made with natural timber

Flooring:

✯ Vitrified tiles are used in bedrooms
✯ Wooden flooring is done in the hall, drawing-room.
✯ The kitchen and bathroom are floored with anti-slippery tiles.

Fitting:

✯ Semi-modular kitchen with electronic Geiger
✯ Good quality mobs are fitted
✯ Pvc cables are used in the whole villa
✯ CP fittings are also there



Godrej Crest Villas RERA number/ id.

A RERA registered project with registration number - UPRERAPRJ151.


Godrej Crest Villas Features



  • Power Backup
  • 24x7 security
  • Coffee shop or café
  • Public Transportation
  • Water purifier
  • Visitor parking
  • Cafeteria
  • Landscaped gardens
  • Maintainance staff
  • Water Storage
  • Waste disposable
  • Intercom facility
  • Club house
  • Restaurants
  • lifts
  • Rain harvesting
  • Shopping center

 

Godrej Crest Villas Places Nearby

 

Schools

School

Delhi World Public School

The Millennium School

Lotus Valley International School

Ryan International School

Sarvottam International School

BGS Vijnatham School

Shopping

Shopping

Delhi World Public School

The Millennium School

Lotus Valley International School

Ryan International School

Sarvottam International School

BGS Vijnatham School

Connectivity

Connectivity

Delhi World Public School

The Millennium School

Lotus Valley International School

Ryan International School

Sarvottam International School

BGS Vijnatham School

Hospital

Hospital

Delhi World Public School

The Millennium School

Lotus Valley International School

Ryan International School

Sarvottam International School

BGS Vijnatham School


Godrej Crest Villas Location Map


The project is in close proximity to several locations:


10 Minutes drive to Greater Noida Expressway.

15 Minutes drive to Knowledge Park.

5 Minutes drive to near Metro Station in Aqua Line.

Noida Special Economic Zone - 20 Mins.

10 Minutes drive to Pari Chowk.

Best Hospitals - 15 Minutes.




Godrej Crest Villas Price List




TYPE Super Area Price
4 BHK+4T 2359 Sq.ft
4 BHK+4T 2835 Sq.ft
4 BHK+4T 4690 Sq.ft
5 BHK+5T 6168 Sq.ft

Godrej Crest Villas Master Plan



Godrej Crest Villas Master Plan

Why Godrej Crest Villas?


A new residential complex, Godrej Crest, has been inaugurated by Godrej Properties as part of its growing township venture. Located in South Mumbai, the Godrej Golf Links is a 100-acre project with a golf course. The villas are magnificent, with lovely residential villas in lush and verdant greenery, offering unrivaled and heavenly levels of luxury. Living here, the most beautiful landscaping in Noida will surround you. The class-rich projects are in Greater Noida, one of the best places to live in the country. Their connectivity is also excellent.


Godrej Crest Villas Gallery


Godrej Crest Villas Faq


Answer: Sector-27, Greater Noida, is home to the Godrej Crest Villas. The project has a total area of 100.0 Acres.
Answer: At the Godrej Crest the Suites and Godrej Crest Villas, you can choose from a variety of 1BHK suites, 2BHK villas, 3BHK villas, and 4BHK villas.
Answer: The project is located in Greater Noida's Sector 27. The project covers an area of almost 3.85 acres.
Answer: Godrej Golf Links Crest Villas are currently under construction.
Answer: This site is located in Greater Noida in Sector 27, close to the Greater Noida and Yamuna Expressways. Godrej Crest is part of Godrej Golf Links in Sector 27.
Answer: HDFC Home Loan and SBI have approved a loan for Godrej Crest the Suites.
Answer: Godrej Crest Villas have a size range of 2359 to 6168 square feet.
Answer: Many fast-growing organizations in the real estate industry offer consumers comprehensive solutions to their real estate needs.



SIMILAR PROJECTS



Copyrights © 2025. All Rights Reserved